PA16/01169 | Construction of 2 storey dwelling and attached garage to replace previous approval PA14/12226 | 17A Back Lane Angar
Submitted by Angarrack.info ... on Fri, 11/03/2016 - 11:15.
Construction of 2 storey dwelling and attached garage to replace previous approval PA14/12226 - 17A Back Lane Angarrack Hayle Cornwall TR27 5JE
Ref. No: PA16/01169 | Received date: Fri 05 Feb 2016 | Status: Pending Consideration | Case Type: Planning Application
| Reference | PA16/01169 |
|---|---|
| Alternative Reference | Not Applicable |
| Application Received | Fri 05 Feb 2016 |
| Application Validated | Fri 05 Feb 2016 |
| Address | 17A Back Lane Angarrack Hayle Cornwall TR27 5JE |
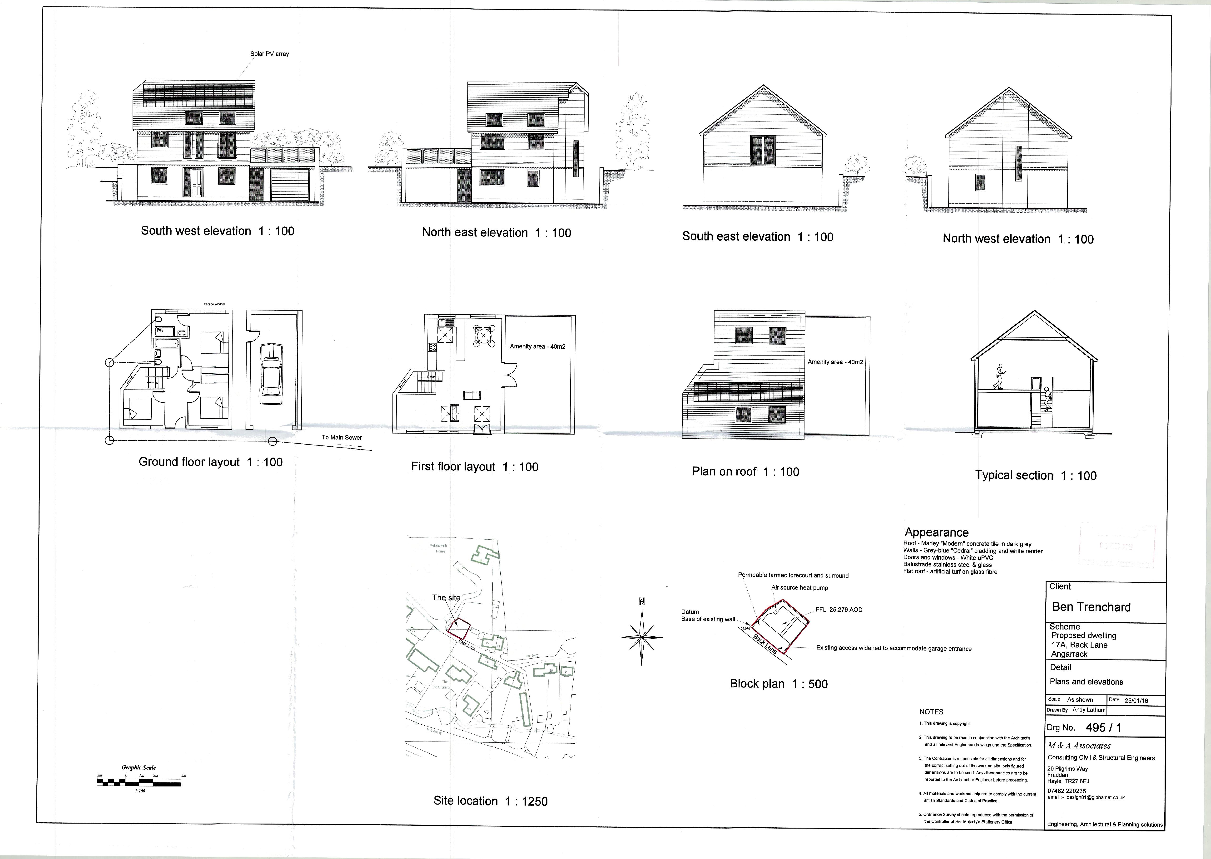
| Proposal | Construction of 2 storey dwelling and attached garage to replace previous approval PA14/12226 |
| Status | Awaiting decision |
| Appeal Status | Unknown |
| Appeal Decision | Not Applicable |
There are 0 cases associated with this application.
There is 1 property associated with this application.
Planning Applications (4)
- Retention of single storey domestic garage/workshop
- To demolish old workshops and erect a new dwelling
- Demolish old workshops and erect new dwelling. Revised application following planning approval PA13/06956 in order to amend the boundary wall position
- Construction of 2 storey dwelling and attached garage to replace previous approval PA14/12226
| Case Number : | PA16/01169 |
| APPLICATION FORM |
| Name or Detail | Received Date | |
![]() | Application for Planning Permission | 05/02/2016 |
| ASSESSMENT - LAND CONTAMINATION |
| Name or Detail | Received Date | |
![]() | Mining Report | 05/02/2016 |
| PLAN - MIXED |
| Name or Detail | Received Date | |
![]() | Drg No. 495/1 | 05/02/2016 |
| STATEMENT - DESIGN AND ACCESS |
| Name or Detail | Received Date | |
![]() | Design and Access Statement | 05/02/2016 |
| SUPPORTING INFORMATION |
| Name or Detail | Received Date | |
![]() | MSUK Mining Recommendation | 05/02/2016 |
![]() | Sensitive Development Questionaire | 05/02/2016 |
- Printer-friendly version
- Login or register to post comments
- Permalink
Contributions
- Angarrack Defibrillator Team (25)
- Angarrack Inn (336)
- Angarrack Methodist Chapel (3)
- Carol (15)
- Gail (1)
- GordonG (12)
- Hayle Development Group on Facebook (5)
- Hayle Harbour Authority (4)
- Hayle Town Council (5)
- louise (1)
- Lynne (111)
- Mal (1)
- MattBuckley66 (9)
- Neil (22)
- Neils Garden Care (9)
- Russell (21)
- Secretary - Christmas Lights (141)
- Steve (3)
- webmaster (5122)
Book page
Similar
- Submission of details to discharge condition 6 in respect of decision notice PA16/01169 - 17A Back Lane Angarrack H | PA16/01169
- Approved with conditions | PA16/01169 | Construction of 2 storey dwelling and attached garage to replace previous approval PA14/
- Appeal Allowed | PA15/01953 | Construction of a pair of semi-detached dwellings - 12 Back Lane | Decision APP/D0840/W/15/3121461
- PA15/10626 | Approved with conditions Proposed new dwelling (redesign & positioning of Planning Approval PA10/04077 & PA11/06433
- PA15/10626 | Proposed new dwelling (redesign and positioning of Planning Approval PA10/04077 and PA11/06433) | Land Adj To Numbe
Similar across site
- Submission of details to discharge condition 6 in respect of decision notice PA16/01169 - 17A Back Lane Angarrack H | PA16/01169
- Approved with conditions | PA16/01169 | Construction of 2 storey dwelling and attached garage to replace previous approval PA14/
- PA16/01169 | Construction of 2 storey dwelling and attached garage to replace previous approval PA14/12226 | 17A Back Lane Angar
- Appeal Allowed | PA15/01953 | Construction of a pair of semi-detached dwellings - 12 Back Lane | Decision APP/D0840/W/15/3121461
- PA15/10626 | Approved with conditions Proposed new dwelling (redesign & positioning of Planning Approval PA10/04077 & PA11/06433











Recent comments
11 weeks 6 days ago
17 weeks 37 min ago
17 weeks 37 min ago
31 weeks 6 days ago
51 weeks 3 days ago
51 weeks 3 days ago
51 weeks 3 days ago
51 weeks 3 days ago
1 year 21 weeks ago
1 year 35 weeks ago